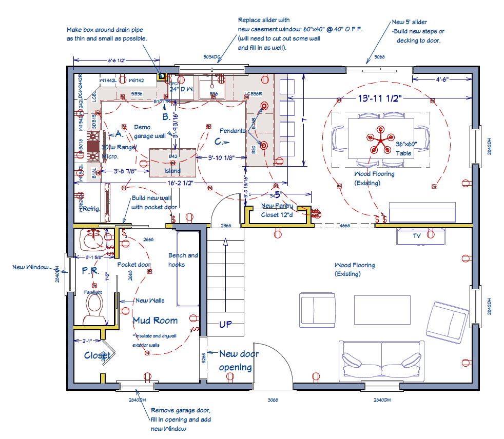
New life for a mid-century home

This "typical" 1950's home in the Philadelphia suburbs needed new life for today's family. The garage was too narrow to easily get a car into it, and was only usable as storage space. We took advantage of that space to expand the kitchen, create a mudroom, and add a half-bath and coat closet on the main floor. The kitchen now flows well, has all of the modern amenities, and is open to the dining area, creating a roomy, open and welcoming entertaining space. There is a large deck off of the dining area to extend that space outdoors.
On the second floor, we took advantage of a very large closet to expand the size of the tiny bathroom, creating space for a double vanity, and more room to move around.
This lovely house is totally refreshed, is now on the market, and ready to have a new owner add the finishing touches to it.