From 1979 to 2022
In the Chester County, PA area, homes like this one are usually in a great neighborhood and school district on a nice-sized piece of land. For these reasons, the homeowners want to stay put, but like this client, wish to update the home to bring it into the 2020s. We were brought in to the job to help conceive of a new design, and worked with Harlan Custom Contracting to bring this client's vision to fruition. A new renovation plan and updated finishes and furniture transformed this 1979 house into a beautiful, more functional home.
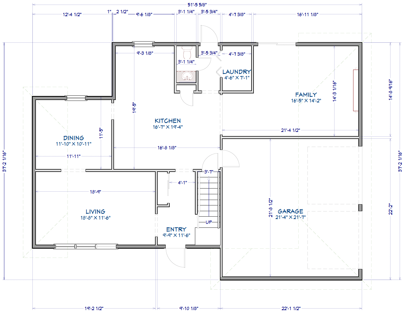
As you can see from the original floor plan and photos, the back of the home was segmented and cramped. The laundry closet, powder room, and a hallway to the back yard stole space from the family room and kitchen area.


Because the clients' budget didn't allow for an addition onto the house, we looked to the garage (taking up about a quarter of the space) to create a separate mudroom, laundry room and coat closet. The mudroom has everything a busy, active family needs-- shoe storage, coat hooks, a beautiful bench and cabinetry for a drop zone, household files, and storage. The laundry room is no longer just a laundry closet. A pocket door saves space, and the cabinetry over the washer and dryer is perfect for all of the laundry and cleaning supplies. In addition, the room also houses the second refrigerator, keeping it in close proximity to the kitchen area.
Finally, the powder room was moved to the front of the home in the coat closet's location, enabling a bigger space in a more central location.

These changes freed up the back part of the house to become the more open, family entertaining and gathering space the homeowner was looking for, with plenty of room to spread out. Removing the peninsula in the kitchen was critical to creating better flow. The new island allows easy access to the kitchen and is a great place to gather.
Adding large windows and a sliding door to the back wall created a large, sun-drenched, casual family dining space with easy access to the outdoor patio. It also made for better flow between the indoor and outdoor spaces, which works well when the clients entertain.
The owner asked for a coffee bar with pantry/storage space. This built- in is as functional as it is beautiful, as extra storage is always a welcome addition.
Before, the only natural light in the family room came from a sliding glass door in a corner. Now, in addition to the sliding glass door, we added floor-to-ceiling windows on the sides of the fireplace, flooding the room with natural light. Finally, we took the new fireplace stone to the ceiling drawing the eye up and making the ceiling appear higher. To keep the TV from being too high, the clients found a great bracket that brings the tv out and lowers it down for maximum flexibility.
The formal living room showed its wear and needed some freshening up. The wall-to-wall carpeting was removed, and the wood flooring seen throughout the rest of the first floor was installed. In addition to the floors, every element in this room has been updated with paint, rugs, window treatments, furniture and accessories.
Finally, the last item on the first floor needing an update was the staircase. The stairs were painted in black and white and covered with a classic herringbone runner. The new post and railing match the floor. The stand-out feature is the wrought iron balusters, creating a totally reimagined staircase.
This renovation was designed with the families' needs in mind. After the renovation, the spaces provide storage where needed, especially in the mudroom, and are updated, fresh, and welcoming.
























